Ahşabın uyumu: Grill Polonez Vadistanbul

Grill Polonez.
Grill Polonez.

İlk restoranını 2015 yılında açan Grill Polonez, 2. Şubesini Vadistanbul’da açtı. Kasap, şarküteri ve et restoranı işlevlerini bir araya getirerek ahşap dokunun ağırlıklı olarak kullanıldığı mekan, GVDS Mimarlık tarafından tasarlandı.

Grill Polonez, Ayazağa’da bulunan Vadistanbul Alışveriş Merkezi’nin açık alanında yer alıyor. Kapalı iç mekanları, yarı açık ve açık terasları ile restoran 850 ’lik oldukça geniş bir alana sahip.

Grill Polonez Vadistanbul, 2018 yılında hizmet vermeye başladı.
Grill Polonez Vadistanbul, 2018 yılında hizmet vermeye başladı.

GVDS Mimarlık, restoranı tasarlarken samimi ve kullanıcıların aşina oldukları bir atmosfer oluşturmayı amaçladıklarını dile getiriyor.

Restoranın iki şubesi de GVDS Mimarlık tarafından tasarlandı.
Restoranın iki şubesi de GVDS Mimarlık tarafından tasarlandı.

Tasarımda dış mekanların, kapalı alanla olan ilişkisine önem veriliyor.
Tasarımda dış mekanların, kapalı alanla olan ilişkisine önem veriliyor.

Tasarım dilinin ortak olduğu oturma alanları, her yaşın ergonomisine göre bölümlere ayrılıyor. Her gereksinime cevap veren masa ve oturma grupları incelikle tasarlanıyor ve plan yerleşimine azami düzeyde özen gösteriliyor.

Bu birimler sayesine geniş mekan, kullanıcıların kolayca ayırt edebileceği ve benimseyebileceği bir yer haline getiriliyor.
Bu birimler sayesine geniş mekan, kullanıcıların kolayca ayırt edebileceği ve benimseyebileceği bir yer haline getiriliyor.

Açılır kapanır camları sayesinde mekan; yarı açık teras, toplantılar ve etkinlikler için elverişli hale geliyor. Kalabalık gruplar için özel bir mekan oluşturma düşüncesi ile bu alana ayrıca, oldukça büyük bir masa ve oturma grubu da yerleştiriliyor.

Büyük topluluklar için tasarlanan teras.
Büyük topluluklar için tasarlanan teras.

Mutfak, müşterilerin yemeklerin nasıl hazırlandığını izlemeleri ve hijyen konusunda şüphe duymamaları için yarı açık planla organize ediliyor.

Mutfak ve yeme alanlarının ilişkisini gösteren görsel.
Mutfak ve yeme alanlarının ilişkisini gösteren görsel.

Restoranda müşterilerin et alışverişlerini yapabilmeleri için ayrı geniş bir şarküteri ve kasap bölümü de bulunuyor.

Şarküteri bölümü.
Şarküteri bölümü.

GVDS Mimarlık malzeme seçiminde ahşap, taş, tuğla, halat gibi sıcak malzemelerin ham hallerini tercih ediyor. Mekansal bütünlüğü sağlamak için restoranın tüm alanlarında benzer malzemeler kullanılıyor.

Malzeme geçişlerindeki itinalı işçilik dikkat çekiyor.
Malzeme geçişlerindeki itinalı işçilik dikkat çekiyor.

Lavabo alanı.
Lavabo alanı.

Gemi omurgasından ilham alınarak tasarlanan ahşap kaplama kirişler, mekana otantik bir ambiyans katıyor. Tavan örtüsü olarak kullanılan 2,4 km uzunluğundaki halatlı sistem, teknik elemanları yarı örtücü bir şekilde gizlerken kalabalık ortamda oluşabilecek akustik problemlere de çözüm sunuyor.

Tavan örtüsü.
Tavan örtüsü.

Teraslarda kullanılan çatı tekniği, uçak kanadından esinlenerek oluşturuluyor. İç mekan ahşap kirişleriyle bütünlük sağlayan sistem, doğal bir gölgelik oluşturarak güneşli havalardaki olası dış mekan dezavantajlarını avantaja dönüştürüyor.

Çatı örtüsü dışarı doğru yükseliyor.
Çatı örtüsü dışarı doğru yükseliyor.

Cam yüzeyleri ile mekanı oldukça aydınlık gösteren çatı, açılır kapanır sistemi sayesinde havalandırma ihtiyacını doğal yollarla karşılıyor.

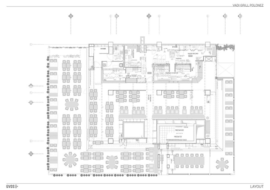
Plan.
Plan.

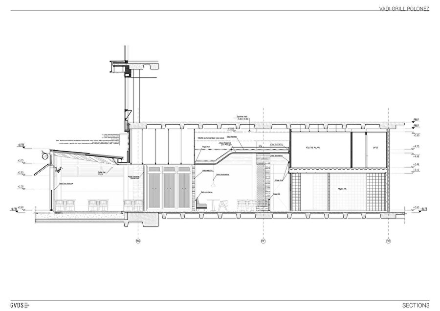
Kesit.
Kesit.

Kesit.
Kesit.

Kesit.
Kesit.

Proje

Grill Polnez Vadi İstanbul

Mimar

Görkem Volkan Design Stodio

Yer

Sarıyer, İstanbul

Yıl

2018

Alan

850 m²

İşveren

Modern Restoran ve Kafeterya İşletmeleri AŞ

Ana belirleyici

Nova Reklam ve Dekorasyon

Proje başkanı

Görkem Volkan, Demet Öğütler

Grafik tasarım

Nova Reklam ve Dekorasyon

Statik projesi

2e Tasarım Mühendislik

Mekanik projesi

Gök-Ay Proje ve Mühendislik

Fotoğraf

Ali Bekman Fotoğraf

Şantiye Yöneticisi

Onur Çınar

Yorumunuzu yazın, tartışmaya katılın!

YORUMLAR
Sırala :

Bu içerik ile ilgili yorum yok, ilk yorumu siz yazın, tartışalım