Esnek mekanlar: Back Country Evi

Back Country Evi, Yeni Zelanda.
Back Country Evi, Yeni Zelanda.

Yeni Zelanda’nın Puhoi şehrinde yer alan iki katlı konut, LTD Architectural Design Studio tarafından tasarlandı. Gözlerden uzak, ağaçlarla kaplı bir alanda bulunan evin, doğayla bütünleşmesi hedefleniyor. Proje, tasarım düzeni ve malzeme kullanımıyla Architectural Designers New Zealand (ADNZ) Awards ödülünü aldı.

Zemin kattaki yaşam alanı, geniş bir terasa açılıyor.
Zemin kattaki yaşam alanı, geniş bir terasa açılıyor.

LTD Architectural Design Studio’ya liderlik eden Maurice, evi kendi ailesi için tasarlıyor. Sadeliği ve yalınlığı hedefleyen mimar; yaşam alanı, mutfak ve yemek odasını alt katta birlikte çözümlüyor. Evin birimlerini, kapalı ve ayrı olarak düzenlemek yerine açık ve paylaşımlı şekilde tasarlıyor.

Yapıya eklenen hacim, yatak odaları ve servis alanlarını içeriyor.
Yapıya eklenen hacim, yatak odaları ve servis alanlarını içeriyor.

Back Country Evi, başlangıçta tek kat olarak tasarlanıyor ancak sonra artan ihtiyaçlar sebebiyle ikinci bir kat yapılıyor. Evin ikinci katı, eğimli bir çatıya sahip olup bünyesinde yatak odası ve bir ofis alanı barındırıyor.

Back Country Evi, Yeni Zelanda'nın kırsal kesimindeki evlerin bir tür yeniden yorumlanması olarak görülüyor.
Back Country Evi, Yeni Zelanda'nın kırsal kesimindeki evlerin bir tür yeniden yorumlanması olarak görülüyor.

Zeminde kullanılan gri tonlu ahşap malzeme ve beton, yapının manzara ile uyum içerisinde olmasını sağlıyor.
Zeminde kullanılan gri tonlu ahşap malzeme ve beton, yapının manzara ile uyum içerisinde olmasını sağlıyor.

Yaşam alanı, iki taraftan tamamen açılarak kullanıcıda, dışardaymış hissi uyandırıyor. Terasta yer alan şömine ve jakuzi, günlük aktiviteleri doğanın içinde uygulamaya olanak tanıyor.

Dışarda yer alan şömine, terasın yıl boyunca kullanılmasını sağlıyor.
Dışarda yer alan şömine, terasın yıl boyunca kullanılmasını sağlıyor.

İç ve dış mekanda, makrokarpa ahşabı gibi yerel kaynaklı doğal malzemeler kullanılıyor. Duvarların içindeki yüksek performanslı yalıtım malzemesi, enerji verimliliğini artırarak projenin çevre üzerindeki olumsuz etkilerini en aza indiriyor. Cephede kullanılan galvanizli demir, binayı dış etkenlerden koruyor ve yapı estetiğini güçlendiriyor.

Yapı, geniş bir dağ manzarası sunuyor.
Yapı, geniş bir dağ manzarası sunuyor.

Yatak odasında bulunan geniş çalışma masası, alanın ofis gibi kullanılmasına imkan veriyor.
Yatak odasında bulunan geniş çalışma masası, alanın ofis gibi kullanılmasına imkan veriyor.

Üst katta, ebeveyn yatak odası ve banyosu bulunuyor. Çatıdaki tepe pencereleri, kullanıcının çalışması ve vakit geçirmesi için ışıkla dolu bir alan oluşturuyor.

Ana yatak odası, eğimli çatının altında yer alıyor.
Ana yatak odası, eğimli çatının altında yer alıyor.

Mutfak ve yemek alanı.
Mutfak ve yemek alanı.

Oturma odasının arkasında, mutfak ve yemek alanı yer alıyor. Minimalist beyaz mutfak dolapları ve yemek sandalyeleri, yine aynı renk tercih edilen duvarları tamamlıyor.Yemek bölümünün yanında, çocuklar için ihtiyaç halinde açılıp kapanabilen, bir seperatörle ayrılan yatak odası ve oyun alanı bulunuyor.

Çocuk oyun alanı.
Çocuk oyun alanı.

Evin ana banyosu, yemek odası ve çocuk yatak odası arasında yer alıyor.
Evin ana banyosu, yemek odası ve çocuk yatak odası arasında yer alıyor.

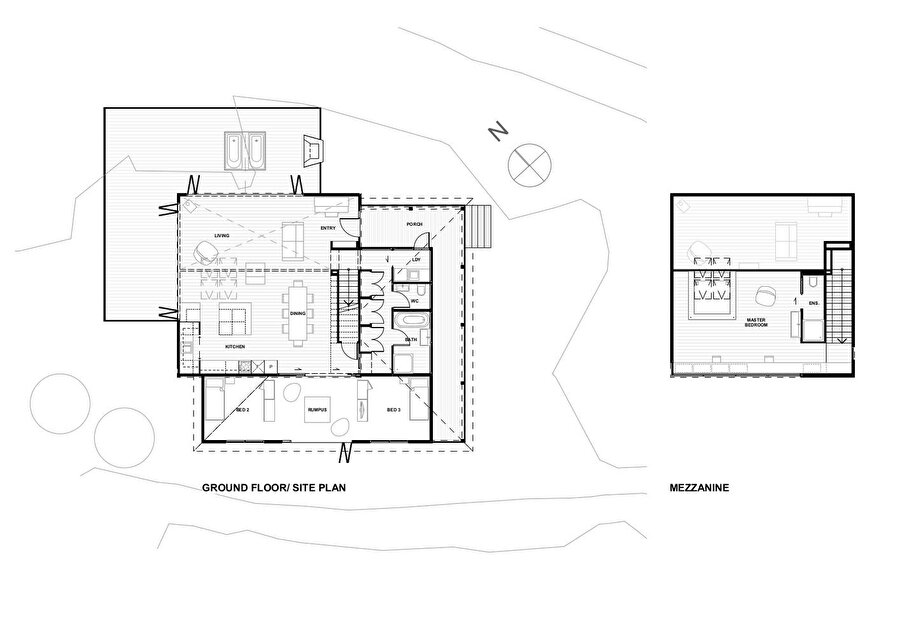
Kat planları.
Kat planları.

Kuzeydoğu ve güneybatı görünüşleri.
Kuzeydoğu ve güneybatı görünüşleri.

Güneydoğu ve kuzeybatı görünüşleri.
Güneydoğu ve kuzeybatı görünüşleri.

Proje

Back Country Evi

Mimar

LTD Architectural Design Studio

Baş mimar

David Maurice

Yer

Phoi, Yeni Zelanda

Proje yılı

2016

Proje alanı

164 m²

Mühendis

Markplan Danışmanlık Ltd

Yorumunuzu yazın, tartışmaya katılın!

YORUMLAR
Sırala :

Bu içerik ile ilgili yorum yok, ilk yorumu siz yazın, tartışalım