Geleneksel Japon hamamına güncel bir yorum: Kogenayu

Schemata Architects, Tokyo'daki geleneksel bir sento yapısını modern dokunuşlarla yeniledi. Koganeyu adlı proje, orjinal olarak 1985 yılında inşa edilmiş bir hamamın yenilenme projesi olarak karşımıza çıkıyor.

Geleneksel Japon hamamları olan sentolar, Japon halkı için tarih boyunca topluluğun bağ kurduğu önemli buluşma yerleri olarak görülüyor. Günümüzde Japon hanelerinin %95'inin özel banyosu olması, sentoların müşterilerinin azalmasına hatta birçoğunun kapanmasına neden oluyor. Bu durum karşısında yenilikçi ferah tasarımıyla Koganeyu, geleneksel sentoların çağa ayak uydurmasına yardımcı olmayı hedefliyor.
- "Bu kültürün gerçekten önemli olduğunu düşünüyoruz ve gelecek nesil için korumak istiyoruz." - Mimar Kotaro Shimada


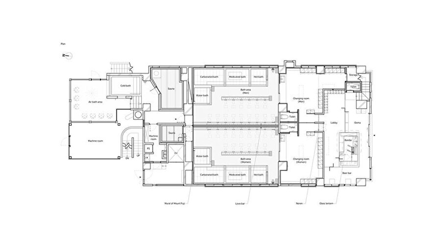
Schemata Architects, Koganeyu'nun sosyalleşme rolünü sürdürmesini amaçladığı için bazı yenileme çalışmaları gerçekleştiriyor. Hamam alanlarının boyutları korunurken atıl alanlar, gençler ve topluluktaki çeşitli gruplar için yeniden işlevlendirilerek toplanma yerine dönüştürülüyor. Kazan dairesi, depo ve makine odası gibi kullanılmayan alanlar; bar, sauna ve hava banyosu olarak kullanıma açılıyor.

Japonya'nın her sentosunda gözlemlenebilecek en yaygın özelliklerden biri olan, erkek ve kadınların banyo alanlarını ayıran yarım duvar projede korunuyor. Yarım duvar sayesinde kullanıcılar sözlü olarak iletişim kurabiliyor. Duvar aynı zamanda mahremiyet de sağlıyor.

Duvar yüksekliğinin, zemin seviyesinin 225 cm üzerine yerleştirilmesine karar veriliyor ve bu ölçü, tasarım için referans olarak kabul ediliyor. Bu yüksekliğin altındaki karolarda, insan vücut rengine uyum sağlamak için açık bej bir renk tercih ediliyor. 225 cm’nin üzerinde kalan alanlar için de; yapısal çerçeve ile uyumlu olan beton kullanılıyor.

Endüstriyel tarzdaki yalın beton duvarlar, sıcak bir ambiyansa sahip olan bej renkli karolarla tezatlık oluşturuyor. Parlaklığı düşük olan aydınlatmalar da atmosfere katkıda bulunuyor.

Duvarda 225 cm kotunun üzerinde, sanatçı Yoriko Hoshi ve Iichiro Tanaka'nın çeşitli sanat eserleri yer alıyor. Japon sentosunun bir başka geleneksel unsuru olan Fuji Dağı duvar resmi, her iki hamam alanının üst kısımlarını kaplıyor. Eser, Fuji Dağı’nda geçen hikayelerden çeşitli sahneler içeriyor.


Kadın ve erkek soyunma odalarında Iichiro Tanaka'nın noren -bölünmüş perde- tasarımı yer alıyor. Sanatçı tasarımını yaparken, yıllardır ayırıcı duvarın üzerinden erkekler ve kadınlar arasında paylaşılan 'oi!' (Hey!) hitabından esinlendiğini dile getiriyor.

Sentonun sokaktan görünen kısmında güncel bir ekleme olan bar tasarımı yer alıyor. Bar, personelin banyo yapanlara göz kulak olması için resepsiyon masasına sahip olan geleneksel sento düzeninin bir uyarlaması. Schemata Architects standı, bir adım daha ileri götürerek çeşitli etkinlikler için DJ kabinine dönüşebilen bir kısım olarak planlamış.
225 cm’lik bir duvar, hamam kısmını kadınlar ve erkekler için iki bölüme ayırırken; 115 cm yüksekliğindeki bar, tüm kullanıcıları bir araya topluyor. Böylece sakin bir ışık altında insanlar birlikte vakit geçirebiliyor.

| Mimar | Jo Nagasaka / Schemata Architects |
Proje ekibi | Kotaro Shimada |
Ürün ve grafik tasarım | TAKAHASHIHIROKO |
Yapısal danışmanlık | Ladderup Architects |
İnşaat | TANK |
Su İşleri | Kamio Corporation |
Sauna | Thermarivm |
Kilitli dolapla | FUJIEI |
İşbirliği | Yoriko Hoshi, Iichiro Tanaka |
Mutfak | HOSHIZAKI |
Ses planı | WHITELIGHT |
Fotoğraflar | Yurika Kono |