Kıvrımlı brüt betonlar ve geniş saçaklar: Rühlstrasse Konutu

1960’lardan kalma bungalov tarzı konutlardan ilham alınarak tasarlanan Rihlstrasse Konutu, brüt betondan oluşan heykelsi yapısıyla dikkat çekiyor. Almanya’nın Bavyera Eyaleti’nde, orman kenarında yer alan konut, Alex Lehnerer tarafından tasarlanıyor. Konutun bölgeye özgü kırma çatısı ve alçak saçakları, iç kısımdan eğimli bir tavan olarak okunuyor.


Orman kenarındaki ev, 1960'ların tipik Alman bungalov mimarisinin sıkça görüldüğü bir yerleşim yerinde konumlanıyor. Civardaki bungalovların hepsi tek katlı bir yapıdan ve geniş çatılardan oluşuyor. Daha öncesinde alanda da, ailenin büyükannesine ait kırma çatılı ve alçak saçaklı bir bungalov yer almaktaymış.


Rühlstrasse Konutu’nun kırma çatısı, bu yerel fikirden yola çıkılarak tasarlanıyor. Alex Lehnerer Architekten ekibi, komşu ormanın eğimini vurgulamak için konutun alçak saçaklarını dikkat çekici bir yatay unsur olarak kullanılıyor.


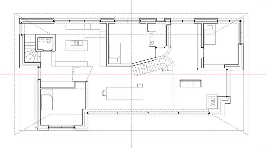
Zemin seviyesi boyunca açık bir kat planı tasarlanıyor. Böylece giriş katta yer alan üç adet çocuk odası, yaşam alanının etrafına yerleştiriliyor. Ebeveyn yatak odası ve çalışma odası, çatı katında yer alıyor. Bu kompakt üst alan, çatı eğimini takip eden pencereler sayesinde doğal güneş ışığı ile aydınlanıyor.


Konut, yerinde yapım tekniğiyle üretilerek hafif kıvrımlı unsurlarla betonarme olarak inşa ediliyor.


Sürgülü kapılar her odada dışarıya doğru açılıyor. Bu sayede, zemin katta neredeyse her nokta görsel olarak birbiriyle bağlanıyor. Zemin kat, duvarlar içinde sınırlı kalmayarak cephedeki geniş açıklıklar sayesinde istenilen her yerden bahçeye ulaşım sağlanıyor.


Kıvrımlı bir forma sahip olan merdiven, kavisli yüzeyleriyle evin merkezinde konumlanıyor. Ön yüzü boyunca, on beş metre uzunluğunda bir kirişle çevreleniyor ve üst katı destekleyen önemli bir yapısal eleman olarak hizmet ediyor.





Proje | Haus Rühlstrasse Konutu |
Mimar | Alex Lehnerer Architects |
Yıl | 2020 |
Konum | Bavyera, Almanya |
Alan | 330 m² |
Yapısal mühendislik | Henke Rapolder |
Çatı | Fleischmann & Grummt |
Tasarım ekibi | Alex Lehnerer, Thomas Strelow, Carolin Lehnerer, Sandra Lehnerer |
Fotoğraflar | Tobias Wootton |