Tarihi binaların basın evine dönüşümü: Norwegian Press House

Atelier Oslo ve KIMA Arkitektur, listelenmiş tarihi iki binayı birleştirerek Norveç için bir basın merkezi tasarladı. 11 medya kuruluşuna ev sahipliği yapan binanın tarihi özellikleri korunarak öne çıkarıldı. Medya ve gazetecilik üzerine ihtiyaç duyulan altyapı ise bina içerisinde hassas şekilde gizlendi.

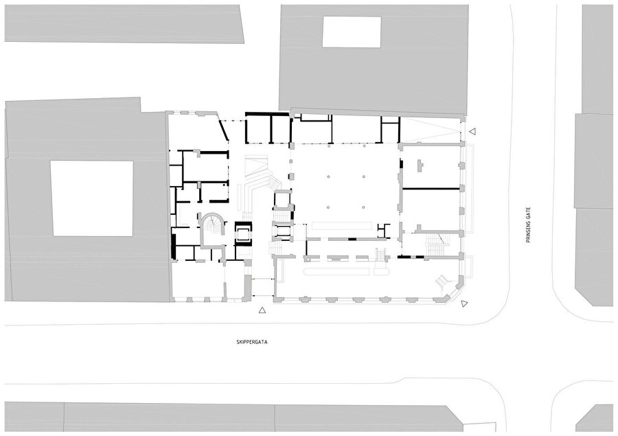
Oslo'nun tarihi şehir merkezinde 1880'lerden kalma koruma altındaki iki bina dönüştürülerek Norveç Basın Evi (Pressens Hus) kuruluyor. Binalar; konferans salonları, stüdyolar, toplantı odaları, bir restoran, medya ve basın etkinlikleri ile desteklenen yeni bir medya merkezine dönüştürülüyor. Basın Evi, yaklaşık 200 kişilik odası ile Norveç'te önde gelen 11 medya kuruluşuna ev sahipliği yapıyor.


Atelier Oslo ve KIMA Arkitektur, her iki binanın da listelenmiş olması sebebiyle proje boyunca koruma yetkilileriyle yakın temaslarda bulunuyor. Binaların özgün tarihi detaylarından kaynaklanan birçok kısıtlamaya bağlı kalarak yeni işlev için çözümler bulunuyor. Bu bağlamda tarihi binalar özgün görünüşleriyle gelecek yıllara taşınıyor.


Proje, yeniden ele alınmış iki atriyum etrafında düzenleniyor. İki atriyumun etrafına ofisler, sosyal alanlar, sirkülasyon ve toplantı odaları yerleştiriliyor. Diğer yandan iki atriyum, oldukça derin hacme ışık sağlayarak kullanıcıların bina içerisinde yön bulmasına yardımcı oluyor. Giriş atriyumu, her katta daha da genişliyor; oditoryum atriyumu ise tam tersi şekilde yükseldikçe daralıyor.

Giriş atriyumu hafif bir his verirken eski deponun kalıntısı olan oditoryum atriyumu daha kasvetli bir görünüm sunuyor. Oditoryum atriyumunda zeminden tavana kadar listelenmiş bir çelik strüktür yer alıyor. Bu strüktür atriyumun daha karanlık olmasına ve diğer atriyumla aralarında kontrast oluşmasına neden oluyor.


Proje kapsamında tarihi tuğla yapının büyük bölümü korunuyor ve restore ediliyor. Yalnızca yeni sirkülasyon ve teknik ekipman için küçük çaplı hassas değişiklikler yapılıyor. İki binanın katları arasındaki seviye farklılıkları, tamamen erişilebilir şekilde yeni bir iç sirkülasyon tasarımıyla çözülüyor.


Tarihi tuğla duvarlara dikkatli şekilde kireç uygulanarak iç mekana hafif ve aydınlık bir atmosfer kazandırılıyor. Taşıyıcı çelik yapılar, açık renkli tuğla duvarlarla kontrast oluşturmak için kırmızı tonlarında boyanıyor. Güneş ışınları kırmızı renkli çelik yapılara vurunca iç mekana orijinal kırmızı tuğla rengi yansıyor.

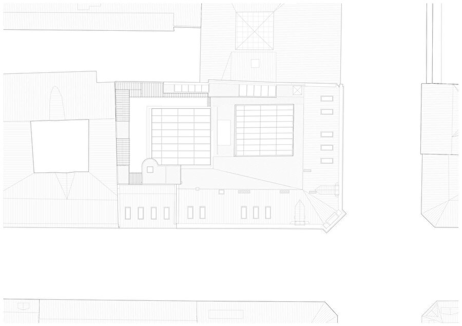
Binalara yapılan ek strüktürler, hafif dişbudak ağacından yapılarak tarihi dokuya uyum sağlaması amaçlanıyor. Cepheler restore edilerek özgün renklerine ve kaplamalarına geri döndürülüyor. Zemin kat, sokağa bakan yeni bir restoran ile kamusal hayata açılıyor. Yeni, pürüzsüz beyaz beton zemin şehir zeminin bir uzantısı olarak zemin katı kaplıyor ve ziyaretçileri iç mekana taşıyor.





| Proje | Pressens Hus |
| Mimar | Atelier Oslo, KIMA Arkitektur |
| Alan | 3738 m² |
| Yıl | 2022 |
| Konum | Oslo, Norveç |
BREEAM danışmanı | Norconsult |
| Akustik mühendis | Brekke & Strand Akustikk |
| Havalandırma | Rambøll, Engenius |
| Elektrik mühendisi | Multiconsult |
| Yapı fiziği | Rambøll |
| Yapı mühendisi | Rambøll |
| Ana yüklenici | Hent |
| İşveren | Aspelin Ramm |
| Yangın mühendisi | Fokus Rådgivning |
| Fotoğraf | Niklas Hart, NTB, EinarAslaksen, Inger Marie Grini |