Teknoloji üssü: Digi-Tech Factory

Coffey Architects, City College Norwich için teknoloji, mühendislik ve tasarım eğitimlerinin gerçekleştirilebileceği bir yapı tasarladı. Cephedeki beyaz mesh panellerle ön plana çıkan tasarımda endüstriyel yapılardan ilham alındı. Tasarımın temel ilkeleri olan ışık ve sosyal alanlar, sürecin merkezinde yer aldı.

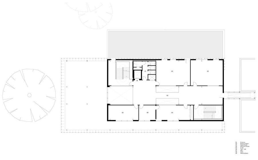
Digi-Tech Factory, City College Norwich’in dijital eğitim üssü olarak tasarlanıyor. 2.877 m²’lik Digi-Tech Factory’de kolejin teknoloji, mühendislik ve tasarım dersleri için robotik laboratuvarlar, dijital stüdyolar, sınıflar ve destek alanları bulunuyor.


Coffey Architects, dijital teknolojileri çağdaş bir endüstri olarak değerlendiriyor ve yapının tasarımında fabrikalardan ve endüstriyel yapılardan ilham alıyor. Bu doğrultuda cephede çelik, kompozit panel ve alüminyum gibi hazır temel malzemeler kullanılıyor. Testere dişli çatı formu, doğrudan klasik endüstri yapılarını yansıtıyor.


Beyaz alüminyum mesh, bina formunu sarmasının yanında iç ve dış mekanlar arasında da ışık oyunlarıyla bir ilişki kuruyor. Işık, alüminyum paneller ile yönlendirilerek doku değişimi ve çevresel kontrol sağlıyor. Paneller, hem doğal hem de yapay ışık ile farklı görünümler sunuyor. Gündüz, güneş ışığı panellerden sızarak içeriye doğru yayılıyor. Hava karardığında ise iç mekanlardaki yapay ışık cepheye yansıyarak yapının kampüsle olan ilişkisini pekiştiriyor.


Binanın merkezinde yer alan giriş ve resepsiyon alanları, güneydoğuya bakıyor ve kapalı dış plazaya doğrudan erişim sağlıyor. Çatıdaki ışıklık, galeri boşlukları sayesinde atriyum ve lobiyi gün ışığı ile dolduruyor. Üst katlardaki koridorların her iki kenarında yer alan ışık kuyuları, katlar arasında çift yükseklikli mekanlar oluşturmanın yanında aydınlık ve ferah bir atmosferi de destekliyor. Ayrıca katlar arası boşluklar mekanlar arasında görsel bağlantılar oluşturarak ortak çalışmayı işaret ediyor. Planın merkezi aksı boyunca uzanan dikdörtgen koridorun her iki tarafına çeşitli eğitim birimleri yerleştiriliyor.


İç mekanlarda tavandan tabana uzanan pencereler, koridordan geçerken laboratuvar alanlarını gösteriyor ve gözlemsel öğrenimi teşvik ediyor. Benzer yaklaşım zemin kattaki laboratuvarlar ile bahçe arasında da kuruluyor. Tasarım, kreatif bir atmosfer sunarak klasik okul algısından uzaklaşıyor. Bu yaklaşım öğrencileri gelecekteki meslek hayatlarına hazırlamayı amaçlıyor.


İç mekanların tasarımında dijital endüstri binası yaklaşımı sürdürülüyor. Strüktür açıkta bırakılarak öğrencilerin, personelin ve ziyaretçilerin binanın mekaniğinin nasıl çalıştığını öğrenmelerine olanak tanınıyor. Bu, hesaplama disiplinlerinde ve kodlamada temel bir düşünce çizgisi olan 'parçadan bütüne' ilişkinin mimari ifadesi ortaya konuyor.


Açıkta bırakılan yapı elemanları, yapı içi hizmetler için esneklik sağlıyor ve gelecekteki olası değişikliklerin gerçekleştirilmesini kolaylaştırıyor. İç mekanın büyük bölümü beyaza boyanıyor, parlak sarı renkli kapılar ve diğer bazı öğeler ise tezatlık oluşturuyor.

Kat planları şekillendirilirken sosyal etkileşim önemli bir rol oynuyor ve bina içinde sosyalleşmek için çeşitli mekanlar oluşturuluyor. Atriyum, binadaki birincil sosyal alan olarak hizmet ediyor. Geniş koridorlar, dersler ve eğitimler arasında sosyalleşmek için ideal alanlar sunuyor. Yapı çevresindeki peyzaj, açık alan etkileşimini artırmak için geliştiriliyor.


Yalnızca yapının kendisi değil çevre düzenlemesi de özenle tasarlanıyor. Mevcut bisiklet ve yaya yolları geliştiriliyor ve trafik akışını iyileştirmek adına park alanları oluşturuluyor. Çeşitlendirilmiş peyzaj, kullanıcıların yol bulmasını kolaylaştırıyor.


Digi-Tech Factory, City College Norwich bünyesinden yaklaşık olarak 500 öğrencinin ve 100 stajyerin eğitim ve araştırmasını destekliyor. Öğrencilere sağlanan eğitim ve deneyim fırsatları ile kampüs içerisinde yeni iş imkanları oluşturuluyor ve Birleşik Krallık’ta halihazırda gelişen dijital teknoloji sektörüne katkıda bulunuluyor.






| Proje | Digi-Tech Factory |
| Mimar | Coffey Architects |
| Yıl | 2021 |
| Konum | Norwich, Norfolk, Birleşik Krallık |
| İşveren | City College Norwich |
| Fotoğraf | Coffey Architects |