Tropikal iklime sürdürülebilir bir deneyim sunan hibrit yapı: Atelier Tropical House

Yemail Arquitectura tarafından tasarlanan Atelier Tropical House, Kolombiya'nın başkenti Bogota'nın San Felipe semtinde yer alıyor. Proje, mahalledeki sanat ve kültür atmosferine uyum sağlarken aynı zamanda modern mimarinin sıcak tropikal dokusunu yansıtan bir yaşam alanı sunuyor. Yapı; sanatçıların, kültürel etkinliklerin ve ticari birimlerin bir arada bulunabildiği, hem işlevsel hem de estetik bir hibrit bina olması ile öne çıkıyor.


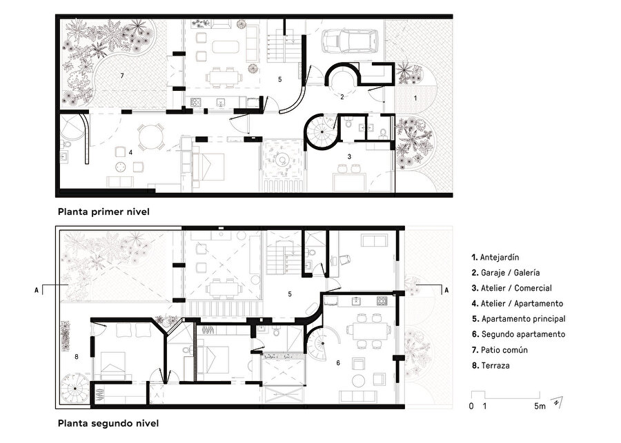
Bina, bir konut olmasının yanı sıra bir atölye,stüdyo işlevi görebilecek alanlar da sunuyor ve bu çok işlevlilik, yapının hem kişisel yaşam alanı hem de üretken bir çalışma alanı olarak kullanılmasını sağlıyor. Mimarlar, minimalistik bir form ile doğal malzemelerin kullanımı arasında bir denge kurmaya çalışıyor. Fonksiyonel bir tasarım dili benimseyen Atelier Tropical House, hem estetik hem de çevresel sürdürülebilirlik kriterlerini karşılamayı hedefliyor. Ev, tropik iklimde enerji tüketimini azaltacak doğal havalandırma çözümleri doğrultusunda tasarlanıyor.


Atelier Tropical House’un dış cephesi, tropik çevreye uyum sağlayacak şekilde tasarlanıyor. Ahşap kaplama, yerel taş dokuları ve geniş cam yüzeyler, doğayla bir bütünlük oluşturuyor. Cephede kullanılan gölgelikler ve çıkmalar, hem estetik bir detay hem de güneşten korunmayı sağlayanişlevsel bir tasarım öğesi olarak dikkat çekiyor.

Atelier Tropical House, çevresel sürdürülebilirliği esas alarak yağmur suyunun toplanması, doğal havalandırma sistemleri gibi enerji verimliliği sağlayan doğa dostu çözümlerle destekleniyor. Doğanın bir parçası olma fikri, yapının hem iç hem dış tasarımında merkezi bir rol oynuyor.

Atelier Tropical House’un iç mekanları, doğrudan dış mekanla iletişim kuracak şekilde planlanıyor. Projede açık planlı bir tasarım anlayışı benimseniyor ve mekanlar arasında akıcı bir geçiş sağlanıyor. Mekanlar, geniş pencereler ve sürgülü kapılar sayesinde doğal ışıkla aydınlanıyor ve hava akışına imkan tanıyor.



Yaşam alanlarının merkezinde, doğayla güçlü bir bağlantı hissi vurgulanması amacıyla, geniş oturma alanları ve açık mutfak düzenine yer veriliyor. Mekanın sıcak iklimde rahatlık sağlaması için hafif renk paletleri tercih ediliyor. Ayrıca, iç mekan bitkileri tasarımın ayrılmaz bir parçası olarak kullanılıyor ve doğayı iç mekana taşıma fikri güçlendiriliyor.






| Proje | Atelier Tropical House |
| Mimar | Yemail Arquitectura |
| Yer | Bogota, Kolombiya |
| Baş mimarlar | Antonio Yemail, José Fernando Cáceres, Martín Jiménez |
Tamamlanma Yılı | 2024 |
İç Mekan Tasarımı | Diego García |
İnşaat Direktörü | Pablo de Jesús García |
Çevre Düzenlemesi | Yarumo Botánico - Elisa Triana |