Yerel kültürle harmanlanan tasarım: Nijer Genel Hastanesi

CADI (CITIC Architectural Design Institute) tarafından tasarlanan hastane, batı Afrika ülkesi olan Nijer Cumhuriyeti’nde yer alıyor. Çin ve Nijer hükümetleri tarafından ortaklaşa yürütülen proje, yerel tıbbi tesisleri iyileştirmek ve geliştirmek için büyük ölçekli bir devlet hastanesi olarak inşa ediliyor.


Hastane, Niamey şehir merkezinin kuzeyinde, yaklaşık 7 km'lik geniş, düz ve kurak bir alanda yer alıyor.


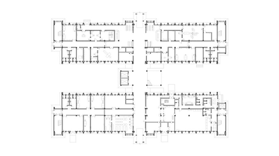
Tıbbi teknoloji binası, hastanedeki ameliyathaneleri ve tüm önemli cihazları bünyesinde bulunduruyor. İki bloktan oluşan bu bölümde, ani sıcaklık değişimlerini önlemek için güneşlikli, küçük pencereler kullanılıyor.

Sıcak ve kuru ortamda konumlanan yapı için gölgeleme oldukça önemli bir etkiye sahip. Yapı içerisinde doğrudan gelen gün ışığından korunmak için, bir dizi güneş kırıcı tasarlanıyor. Projede, gölgeleme panelleri ve duvarlar arasında oluşturulan boşluklar, iç mekanda hava sirkülasyonu sağlıyor. Beton malzemeyle tasarlanan güneşlik sistemi, yüksek bir dayanıklılığa sahip.


Başkentte, nadiren görülen yağışlı günler, beraberinde kuvvetli rüzgarları getiriyor. Rüzgarın savurduğu yapraklar ve tozlar tahliye borularını tıkayabiliyor. Bu yüzden drenaj sistemi, kolay temizlenebilmesi için açık tasarımlı olarak oluşturuluyor. Ayrıca cephede kullanılan yerel kumlu toprak, yağmurun doğal bir şekilde sızıp zemine ulaşmasına olanak sağlıyor.

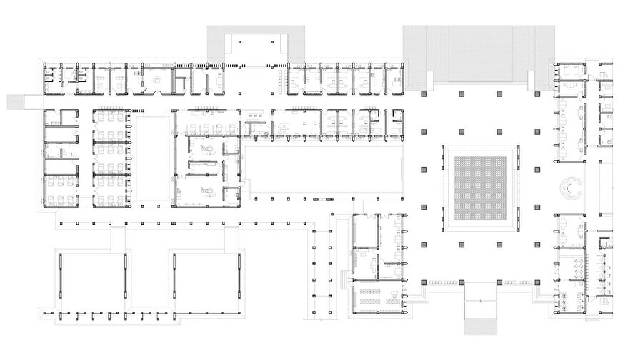
Halka açık salon, kullanıcı için önemli bir bağlantı ve dağıtım alanı sağlıyor. İyi kurgulanmış olan avlu sistemi ile kolay erişilen salon, klima kullanılmadan havalandırılıyor ve enerji tasarrufu sağlıyor.


Çatılarda, ısı geçişini azaltmak için prefabrike beton panellerden oluşan ısı yalıtım katmanları kullanılıyor.

Yatan hasta binası, rampalar ve manastırlarla birbirine bağlanan iki katlı bir yapı olarak tasarlanıyor. Ayrıca hastanede asansör bulunmamasına rağmen, sirkülasyon rahat bir şekilde sağlanıyor.

Nijer'de hakim din İslam olduğu için hastanenin belli bölümlerinde, kolay erişilebilen ibadethaneler tasarlanıyor. İhtiyaç halinde bu ibadethaneler, hastalar ve aileleri için geçici kamp alanlarına da dönüştürülebiliyor.







Proje | Nijer Genel Hastanesi |
Mimarlar | CADI (CITIC Architectural Design Institute) |
Alan | 34000 m² |
Yıl | 2016 |
Baş mimarlar | Liu Chen, Xing Bing |
Proje yöneticisi | Li Xi |
Yapı mühendisi | Nie Qiling, Xiao Wei, Shi Jiliang |
Ekipman mühendisi | Hu Mingdi, Xie Daopeng, Liu Bing, Li Yunzuo, Yang Zhi, Liu Rong |
Tıbbi teknoloji | Li Jin |
Müşteriler | Çin Ticaret Bakanlığı, Nijer Cumhuriyeti Halk Sağlığı Bakanlığı |
Mimarlık ekibi | Liu Chen, Xing Bing, Zhu Hailong, Huang Weiwei, Ai Yuewei |
Şehir | Niamey |
Ülke | Nijer |