Amsterdam’da Eski Silo, Sinema ve Sosyal Mekâna Dönüştürülüyor

Amsterdam’da Eski Silo, Sinema ve Sosyal Mekâna Dönüştürülüyor

Rialto Silo Eylül 2026'da açılıyor! 🎬


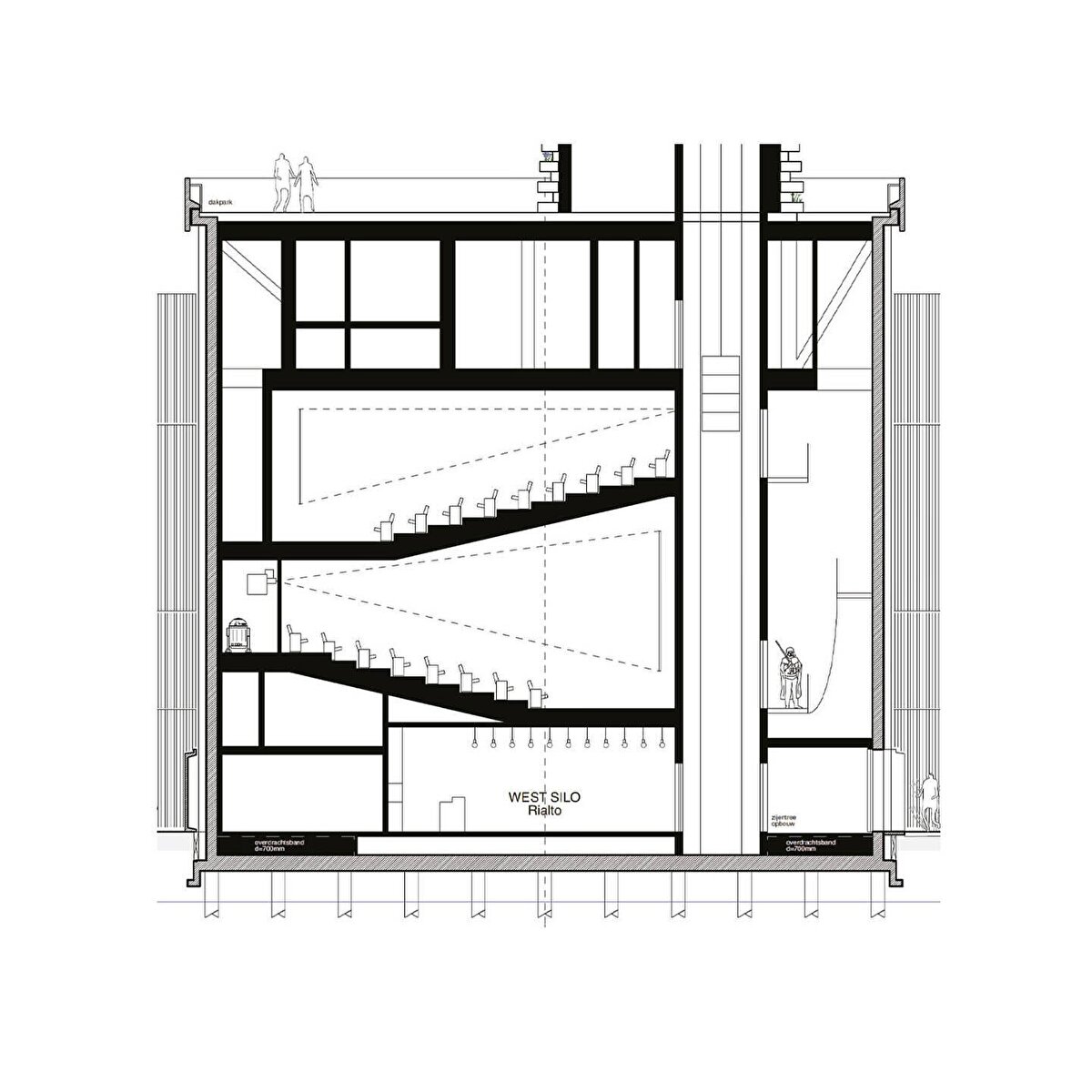
Rialto Silo projesi, Amsterdam'ın Zeeburgereiland bölgesinde yer alan eski bir atık su silosunun, kültürel bir mekâna dönüştürülmesini hedefleyen bir dönüşüm çalışması olarak öne çıkıyor. Yapının 2026 yılının Eylül ayında açılması planlanıyor. Sinema kurumu Rialto'nun üçüncü girişimi olarak hayata geçirilen bu proje, yalnızca film gösterimi için değil, aynı zamanda sosyal buluşmalar ve gastronomi deneyimleri için de çok işlevli bir alan oluşturmayı amaçlıyor. Mevcut üç silo yapısının içine beş ayrı sinema salonu yerleştiriliyor ve bu yapılar, iç-dış mekân ilişkisi göz önüne alınarak yeniden düzenleniyor.


Projenin mimari tasarımı Elephant Architecture B Corp™ ve TANK Amsterdam tarafından yürütülüyor. Yenileme süreci, yapısal çelik montajları ve zemin betonlama çalışmalarıyla birlikte hızla ilerliyor. West ve Middel silo alanlarında salonlar için gerekli taşıyıcı sistemler tamamlanmak üzere. Tasarım, endüstriyel geçmişi yansıtan mimari unsurları korurken, çağdaş kullanım ihtiyaçlarına da uyum sağlayacak biçimde ele alınıyor.


Rialto Silo'nun temel yaklaşımı, işlevini yitirmiş bir altyapı yapısını dönüştürerek kültürel ve toplumsal bir değer oluşturmak. Sinema salonlarının yanı sıra içerisinde barındırdığı restoran, kafe ve sosyal alanlarla birlikte çok yönlü bir yaşam noktası öneriyor. Bu yönüyle Amsterdam'ın dönüşüm geçiren kıyı bölgelerinden biri olan Zeeburgereiland'da yeni bir kültürel merkez olarak konumlanması hedefleniyor.


📸 @vinkbouw.nl

Yorumunuzu yazın, tartışmaya katılın!

YORUMLAR
Sırala :

Bu içerik ile ilgili yorum yok, ilk yorumu siz yazın, tartışalım